Find a Property

5 Bedroom Semi-Detached For Sale
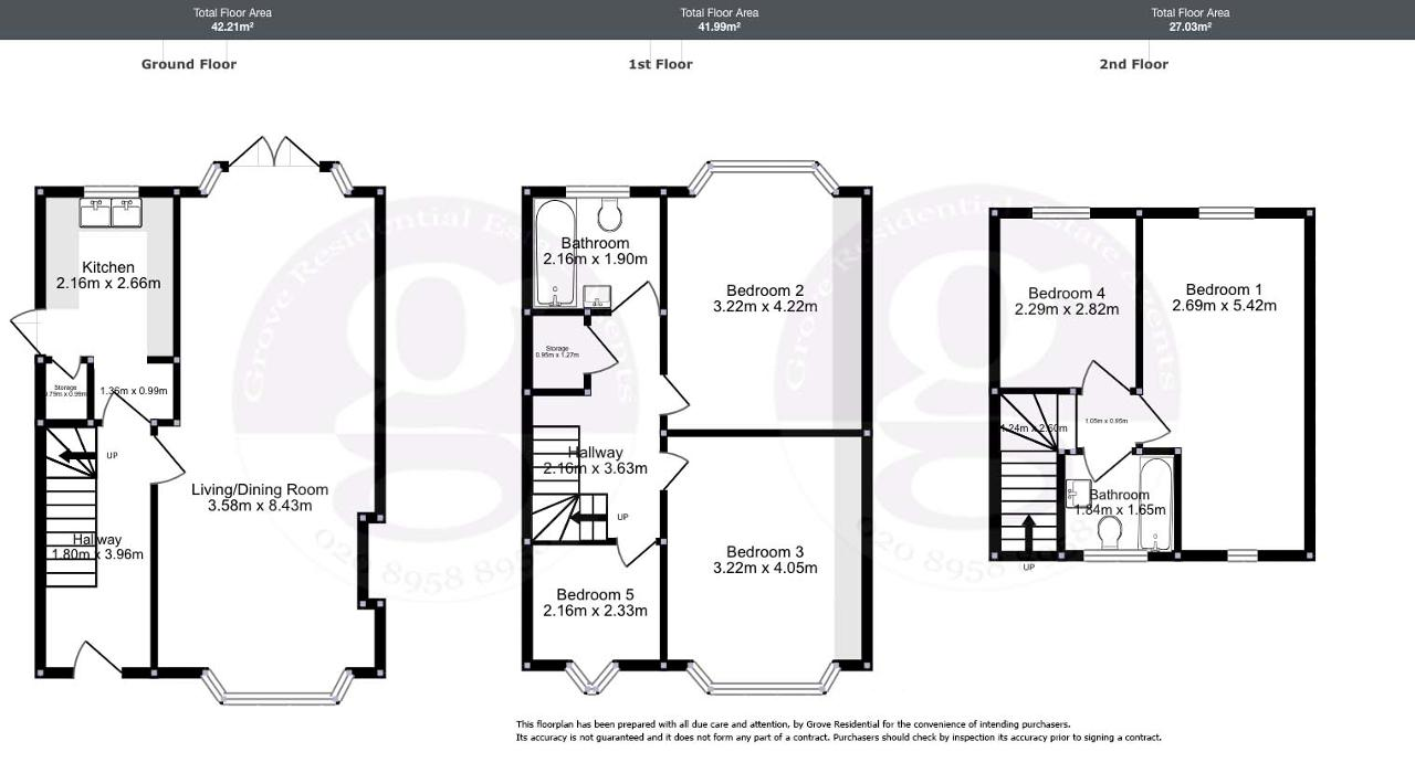
Farm Road, Edgware, Middlesex, HA8 9LR
£720,000

Key Features

  • 5 Bedroom Semi Detached Home
  • Lounge/Dining Room
  • Separate Kosher Kitchen
  • Underfloor Heating in Bathrooms
  • Double Glazing Throughout
  • Loft Converted
  • Chain Free
  • Sole Agents

Summary

A well presented, five bedroom two bathroom semi detached family home, situated on the popular Farm Road. Downstairs the property boasts a modern kosher kitchen and double reception room with air conditioning. Upstairs the home comprises two double bedrooms, a further single bedroom, family bathroom and utility cupboard. The loft conversion provides a further two bedrooms and bathroom. Private rear garden with side access. Scope for further extensions stpp. Offered to the market chain free, view now via sole agents Grove Residential to avoid missing out.

Request a Viewing

Additional Information

For further information on this property please call 020 8958 8958 or e-mail [email protected]

The information contained within this website is for guidance purposes. The particulars have been prepared with all due care and attention, for the convenience of intending purchasers/tenants. Their accuracy is not guaranteed and they do not form any part of a contract. Purchasers/tenants should check by inspection the accuracy of the particulars prior to signing a contract.

Share this property

Administration Fees

Interested in this property?

Telephone 020 8958 8958

Enquire/request a viewing

Share this property

Zoopla Primelocation All Agents Facebook